買いたい

売地

高岡市蓮美町の売地

高岡市蓮美町の売地【外観】
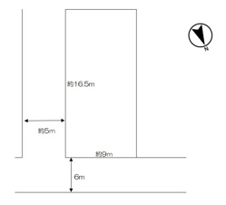
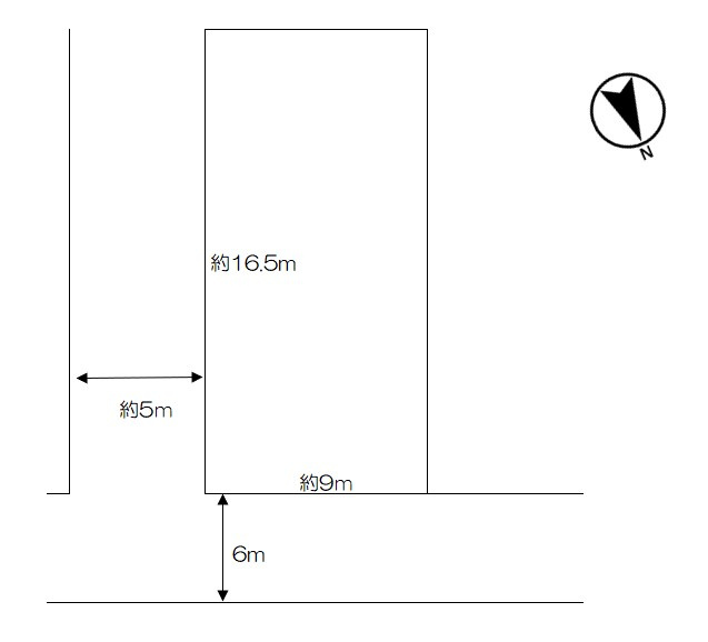
高岡市蓮美町の売地【間取り】
高岡市蓮美町の売地【外観】
高岡市蓮美町の売地【外観】
高岡市蓮美町の売地【外観】
高岡市蓮美町の売地【間取り】
高岡市蓮美町の売地【外観】
高岡市蓮美町の売地【外観】

富山県高岡市蓮美町609-6

土地面積
149.15㎡
坪数
45.11坪
坪単価
11.04万円
交通
万葉線 末広町駅 徒歩16分
所在地
富山県高岡市蓮美町609-6
建築条件
建ぺい率
60%
容積率
200%

物件詳細情報

建物名 高岡市蓮美町の売地 価格 498万円
交通 万葉線 末広町駅 徒歩16分
所在地 富山県高岡市蓮美町609-6
借地期間・地代(月額) - 権利金 -
その他費用 - 周辺の学校 -
土地面積 149.15㎡ 坪数 45.11坪
坪単価 11.04万円 私道負担 -
販売区画数 - 土地権利 所有権
都市計画 市街化区域 用途地域 第一種中高層住居専用
その他法令上の制限 準防火地域 接道状況 角地
建ぺい率 60% 容積率 200%
地目 宅地 地勢 -
国土法届出要否 不要 セットバック -
建築条件 引渡条件 更地渡
現況 上物有 総区画数 1区画
引渡し 相談 管理コード (86846042)
取引態様 専任媒介
設備/条件
  • 都市ガス
  • 公営水道
  • 汲取排水
  • 電気有
備考 -
条件(その他)  解体渡し
情報公開日/
次回更新予定日
2026年03月09日 / 2026年03月23日

この物件へのお問い合わせ

01入力

02確認

03完了

お問い合わせ内容必須
お名前必須
電話番号必須
半角数字で入力してください
備考任意

お問い合わせに関する個人情報の取り扱い
下記事項をご確認の上、『同意する』にチェックをして頂き、お問い合わせフォームをご利用下さい。

個人情報保護方針

*欧州経済領域(EEA)域内に所在している方の個人情報の取扱いに関しては、EEA Specific Privacy Statementをご覧ください。
*2022年4月1日よりプライバシーポリシーは、個人情報保護方針と名称を改めました。

(個人情報の保護に関する基本方針)

株式会社LIXILイーアールエージャパン(以下、「当社」といいます。)は、お客様の個人情報の適切な取扱いおよび保護が、当社にとって社会的責務であると考えております。当社は、当社が取得する個人情報(当社のウェブサイトをご利用いただきましたお客様からご提供いただきました個人情報を含みます。)を、この個人情報の保護に関する基本方針(以下、「本方針」といいます。)に基づき、適切に取り扱い、保護に努めます。

1.個人情報・個人データの定義

(1) 個人情報とは、生存する個人に関する情報であって、以下のいずれかに該当するものをいいます。

  1. ①当該情報に含まれる氏名、住所、生年月日、性別、職業、電話番号、電子メールアドレス等により特定の個人を識別することができるもの。
  2. ②その情報のみでは特定の個人を識別できないが、他の情報と容易に照合することができ、この照合により特定の個人を識別できることとなる情報。
  3. ③個人識別符号(個人情報の保護に関する法律(以下、「個人情報保護法」といいます。)第2条第2項)が含まれるもの。

(2) 個人データとは、個人情報データベース等(個人情報保護法第16条第1項)を構成する個人情報をいいます。

2.個人情報の取得、利用目的

(1) 当社は、お客様ご本人の個人情報について、次の利用目的の達成に必要な範囲内で、適法かつ適正な手段により取得し、利用いたします。

  1. ➀ 当社の取り扱う商品やサービスに関連し、お客様にとって魅力的で、価値のあるサービスを提供するため。
  2. ②お客様から請求された当社商品に関連する資料、カタログ等をお届けするため。
  3. ③お客様に対してダイレクトメール、電子メール等による情報(メールマガジンなど)を提供するため。
  4. ④各種キャンペーンのお知らせや当選したプレゼントをお届けするため。
  5. ⑤当社もしくは当社商品・サービスに関連してお客様から寄せられたご意見、ご要望にお応えするため。
  6. ⑥当社商品・サービスのアフターサービス、メンテナンス等、その他お客様と接触する必要が生じたとき。
  7. ⑦賃貸物件の管理、売買仲介、賃貸仲介等の取引に関する契約の履行、及びその他の情報サービスのため。
  8. ⑧物件(仲介業者)の紹介、お申込み結果等の連絡、賃貸借契約・連帯保証契約締結、履行、及び契約管理、契約後の管理・アフターサービス等の実施のため。
  9. ⑨お客様の依頼された業務を速やかに達成するため。
    1. (1)上記を達成するために建設に関する請負、設計及び付帯する業務にあっては、それら業務に関連する取引先への提供。
    2. (2)上記を達成するために不動産に関する物件情報は以下の取扱を行います。
      • ・他の宅地建物取引業者への提供
      • ・インターネット上への広告掲載
      • ・指定流通機構への登録
      • ・その他取引に必要な調査機関への照会
  10. ⑩取引を完結(登記等)させるため。
    ・司法書士、土地家屋調査士への提供
  11. ⑪住宅ローン等融資に関する申込みのため。
    ・当該金融機関への提供
  12. ⑫住宅ローン等融資申し込み、入居者審査及び保証付保のため。
    ・信用調査機関への提供
  13. ⑬個人情報提供先への個人情報の提供
    ・信用調査機関への提供

(2) お客様の個人情報を前項以外の利用目的で利用する必要が生じた場合には、次のいずれかに該当する場合を除き、事前にお客様ご本人に利用目的をご連絡し、お客様ご本人の事前の同意を得た上で、利用いたします。

  1. ①人の生命、身体または財産の保護のために必要がある場合であって、お客様ご本人の同意を得ることが困難であるとき。
  2. ②公衆衛生の向上または児童の健全な育成の推進のために特に必要がある場合であって、お客様ご本人の同意を得ることが困難であるとき。
  3. ③国の機関もしくは地方公共団体またはその委託を受けた者が法令の定める事務を遂行することに対して協力する必要がある場合であって、お客様ご本人の同意を得ることにより当該事務の遂行に支障を及ぼすおそれがあるとき。
  4. ④法令に基づく場合。

(3) 当社は、第1項の利用目的と関連性を有すると合理的に認められる範囲内でお客様ご本人の個人情報の利用目的を変更することがあります。利用目的を変更した場合には、変更された利用目的をお客様ご本人にご連絡し、または当社のウェブサイトにより公表いたします。

(4) 当社は、個人情報保護法第17条第2項各号に掲げる場合を除くほか、あらかじめお客様ご本人の同意を得ないで、要配慮個人情報(個人情報保護法第2条第3項)を取得いたしません。

(5) 当社にご連絡いただき、ご質問やご意見等をお受けした際に、通話内容の録音等を記録する場合がございます。記録した内容につきましては、その内容の確認や、よりよい応対業務を提供するために利用いたします。

3.共同利用

当社は、上記2.(1)記載の利用目的の達成のため、次の範囲内でお客様ご本人の個人データを共同利用いたします。

(1) 共同して利用される個人データの項目

  • お客様ご本人から特に申入れがある場合を除いて、お客様ご本人の全ての個人データ

(2) 共同して利用する者の範囲

  1. ➀当社ならびに当社親会社
  2. ②株式会社LIXILならびにその国内子会社および関係会社
  3. ③上記①②の業務の委託先

(3) 共同して利用する者の利用目的

  • 上記2.(1)に同じ。

(4) 当該個人データの管理について責任を有する者の氏名または名称

  • 株式会社LIXILリアルティ

4.第三者提供

(1) 当社は、次のいずれかに該当する場合、お客様ご本人の個人データを当社のフランチャイズチェーン加盟店、株式会社LIXILのフランチャイズチェーン加盟店およびボランタリーチェーン加盟店、株式会社LIXILの子会社のフランチャイズチェーン加盟店およびボランタリーチェーン加盟店、ならびに当社商品の販売代理先その他の第三者(外国にある第三者を除きます。以下、本項において同じです。)に提供することがあります。

  1. ①あらかじめお客様ご本人から同意をいただいた場合。
  2. ②お客様個人を識別できない状態にしている場合。
  3. ③上記2.(1)記載の利用目的の達成に必要な範囲内で、当社の業務委託先(再委託先を含みます。)に個人データの取扱いの全部または一部を委託することに伴って当該個人データを提供する場合。
  4. ④合併その他の事由による事業の承継に伴って個人データが提供される場合。
  5. ⑤共同利用の場合(上記3.)。
  6. ⑥上記2.(2)①ないし③のいずれかに該当する場合。

(2) 当社は、前項のいずれの場合にも該当しない場合であっても、個人情報保護委員会に届け出た上で、次の範囲内で、お客様ご本人の個人データ(要配慮個人情報を除きます。以下、本項において同じです。)を第三者(外国にある第三者を除きます。以下、本項において同じです。)に提供することがあります。

  1. ①本項に基づき、第三者に提供される個人データの項目
    お客様ご本人から特に申し入れがある場合を除いて、お客様ご本人の全ての個人情報
  2. ②本項に基づく、第三者への提供の方法
    紙、電子データの伝送、外部記録媒体の形式での交付、サーバーへのアクセスのいずれかの方法
  3. ③本項に基づく提供停止のお求めの方法
    お客様ご本人より当社に対し、本項に基づく第三者への提供を停止するようお求めがあったときは、法令の定めに基づき遅滞なくお客様ご本人が識別される個人データの当該第三者への提供を停止いたします。第三者提供の停止請求方法については、下記6.記載の「◆個人情報の訂正・追加・削除、利用停止・消去、第三者提供の停止請求方法◆」にてご案内の内容に従い、下記12.記載の「お問い合わせ窓口」までご送付ください。

(3) 当社は、次のいずれかに該当する場合に、お客様ご本人の個人データを外国にある第三者に提供することがあります。

  1. ①あらかじめお客様ご本人から外国にある第三者への提供を認める旨の同意をいただいた場合。
    この場合の提供先は、外国にある株式会社LIXILの子会社および関係会社に限ります。
  2. ②個人データの取扱いについて、適切かつ合理的な方法により、個人情報保護法第4章第1節の規定の趣旨に沿った措置を実施しており、かつ、当社との間でその実施が確保されている、外国にある第三者に個人データを提供する場合。この場合の提供先は、株式会社LIXILイーアールエージャパンの、外国にある業務委託先(業務委託先には、外国にある再委託先、再々委託先等を含みます。)に限ります。
  3. ③お客様個人を識別できない状態にしている場合。
  4. ④上記2.(2)①ないし③のいずれかに該当する場合。

5.お客様の個人情報の管理

(1) 当社は、全役職員に対する教育啓蒙活動を実施するほか、個人情報を取り扱う部門ごとに責任者を置き、お客様の個人情報の適切な管理に努めます。

(2) 当社は、お客様の個人情報への不正なアクセスや漏洩、滅失、毀損等を防止するため、当社のウェブサイト等についてセキュリティの維持に努めます。

(3) 当社は、委託先との間で機密保持条項を含む委託契約を締結し、お客様の個人情報について、適切な取扱いおよび保護を行わせるよう努力し、漏洩、第三者への再提供・開示、上記2.(1)記載の利用目的の範囲外での利用の防止を図ります。

6.お客様ご本人の個人データの開示、訂正・追加・削除、利用停止・消去、第三者提供の停止

(1) 当社が保有しているお客様の個人データについて、お客様ご本人が、開示、訂正・追加・削除、利用停止・消去、第三者提供の停止をご要望される場合は、以下記載の方法により当社まで直接ご請求ください(第三者提供記録(個人情報保護法第33条第5項)の開示をご要望される場合も同様です。)。当社は、個人情報漏洩防止、正確性、安全性の確保の観点から、法令の規定により特別な手続きが定められている場合を除き、遅滞なく必要な調査を行い、当該ご請求がお客様ご本人によるものであることが確認できた場合に限り、お客様ご本人の個人データの開示、訂正・追加・削除、利用停止・消去、第三者提供の停止を法令の定めに基づき行います。なお、下記に定める請求方法の要件を満たしていない場合や、調査結果に基づき、請求内容が不当と認められた場合は、請求に応じることはできません。

(2) 前項の開示等の実施、不実施については、ご請求のあったお客様ご本人に対して遅滞なくご連絡いたします。なお、不実施の場合は、その理由を説明するよう努めます。

◆個人情報の開示請求方法◆
下記の3点の書類をご準備いただき、下記12.記載の「お問い合わせ窓口」までご送付ください。
※郵便料金はお客様のご負担となりますのでご了承ください。

  • 1)個人情報・第三者提供記録 開示請求書
    ※上記、リンク先をクリックし、個人データ開示請求書をプリントアウトして、必要事項を記載してください。

    2)本人または代理人であることの確認書類
    ※確認書類は以下の書類(個人番号(マイナンバー)の記載がないもの)をご用意ください。
    ※健康保険の被保険者証のコピーは、「記号」「番号」「保険者番号」「QRコード」の箇所をマスキングしてください。(マスキングの例:付箋やテープなど透けない素材で当該箇所を隠してからコピーする。コピーをとった後に当該箇所を見えないように塗りつぶす。)
    本人の場合 運転免許証、パスポート、健康保険の被保険者証のコピー、または住民票など
    代理人の場合
    1. ①本人の、運転免許証、パスポート、健康保険の被保険者証のコピー、または住民票など
    2. ②代理人の、運転免許証、パスポート、健康保険の被保険者証のコピー、または住民票など
    3. ③代理を示す旨の委任状(代理人が弁護士の場合は、登録番号と代理を示す旨の委任状)
    4. ④本人の印鑑証明
    3)返信用封筒
    ※宛先にお客様ご本人の連絡先をご記入の上、404円分の切手(通常郵便代金84円+簡易書留代320円)を貼って同封してください。

    ◆個人データの訂正・追加・削除、利用停止・消去、第三者提供の停止請求方法◆
    下記の2点の書類をご準備いただき、下記12.記載の「お問い合わせ窓口」までご送付ください。

    1)個人データの訂正・追加・削除、利用停止・消去、第三者提供の停止請求書
    ※上記、リンク先をクリックし、個人データの訂正・追加・削除、利用停止・消去、第三者提供の停止請求書をプリントアウトして、必要事項を記載してください。

    2)本人または代理人であることの確認書類
    ※確認書類は以下の書類(個人番号(マイナンバー)の記載がないもの)をご用意ください。
    ※健康保険の被保険者証のコピーは、「記号」「番号」「保険者番号」「QRコード」の箇所をマスキングしてください。(マスキングの例:付箋やテープなど透けない素材で当該箇所を隠してからコピーする。コピーをとった後に当該箇所を見えないように塗りつぶす。)
    本人の場合 本人の場合 運転免許証、パスポート、健康保険の被保険者証のコピー、または住民票など
    代理人の場合
    1. ①本人の、運転免許証、パスポート、健康保険の被保険者証のコピー、または住民票など
    2. ②代理人の、運転免許証、パスポート、健康保険の被保険者証のコピー、または住民票など
    3. ③代理を示す旨の委任状(代理人が弁護士の場合は、登録番号と代理を示す旨の委任状)
    4. ④本人の印鑑証明

7.免責

(1) 当社のウェブサイトのご利用にあたり、お客様にIDおよびパスワードをご登録いただいている場合には、これらの管理に十分ご注意ください。これらの不正使用による損害については、当社は一切の責任を負いません。また、お客様が虚偽の事実または他人の情報をご登録された場合等には、当社は当該IDおよびパスワードのご利用を停止することがありますのであらかじめご了承ください。

(2) 当社は、当社のウェブサイトにリンクされている他のウェブサイトにおけるお客様ご本人の個人情報等の保護、取扱い等については、一切責任を負うものではありません。

8.関係法令等の遵守

当社は、個人情報に関係する日本国の法令および個人情報保護委員会の定めるガイドライン等を遵守いたします。

9.本方針の変更および告知

本方針の内容は、必要に応じて当社が変更することがあります。お客様へは、その都度ご連絡することはできませんので、本方針の最新の内容は、当社のウェブサイトに掲載している最新版をご参照ください。

10.クッキー(Cookie)

(1) 当社のウェブサイトには、お客様が再度ウェブにアクセスされたときに一層便利に利用していただけるよう、クッキーを使っているページがあります。クッキーはお客様のコンピュータが使用する情報機器を識別することはできますが、お客様が個人情報を入力しない限りお客様ご自身を識別することはできません。お使いのブラウザによっては、その設定を変更してクッキーの機能を無効にすることはできますが、その結果ウェブページ上のサービスの全部または一部がご利用になれなくなることがあります。お客様が、使用するデバイス上のクッキーをすべて削除することや、クッキーが保存されないようにブラウザを設定することもできますが、その場合、ウェブサイト訪問時にブラウザの設定を再調整する必要があるかもしれません。また、ウェブサイトの機能が影響を受ける場合があります。

<用語の説明>

【クッキー】ウェブでホームページを閲覧している側のコンピュータを特定する方法の一つです。

クッキーとは、ウェブサーバーからお客様のブラウザ、ハードディスクに送信する小規模な情報のことで、お客様のディスクにファイルとして蓄積されることもあります。アクセス者側にサーバーの情報を格納するのが目的で、一度そのウェブページから離れても、再びアクセスした際にサーバー側がアクセス者のブラウザ、ハードディスクに保管しておいた「クッキー」を読みとることでアクセス者のコンピュータを特定できる仕組みです。クッキーを使用することにより、お客様のコンピュータを識別することができますが、お客様が個人情報を入力しない限りお客様ご自身を識別することはできません。

(2) 当社では、以下のような場合にクッキーを使用することがあります。

  1. ①より満足いただけるようにウェブサイトのコンテンツを改廃する場合。
  2. ②個々のお客様に合わせてカスタマイズされたサービスを提供する場合。
  3. ③お客様がどのようなサービスに興味をお持ちなのか分析する場合
  4. ④サイト上での効果的な広告の配信のために利用させていただく場合。

(3) 当社は、当社サービスの質を向上させるため、Google Analyticsなどの解析ツールやマーケティングツールを利用して、当社ウェブサイトなどの当社サービスの計測を行っています。当社が発行するクッキーをもとにして、Google 社がお客様の本サイトの訪問履歴を収集、記録および分析します。当社は、それらの情報を、利用状況の把握など当社サービスに利用する場合があります。Google Analyticsの利用規約に関する説明についてはGoogle Analyticsのサイトを、Google社のプライバシーポリシーに関する説明についてはGoogle社の以下のサイトをご覧ください。

11.セキュリティ

当社のウェブサイトは、インターネット上で情報を自動的に暗号化して通信を行うセキュリティ機能(SSL/TLS)をフォーム送信に採用しております。TLSv1.2以降をサポートしているブラウザを使用されない場合、セキュリティ機能が正しく動作しない場合がありますので、最新のGoogle Chrome、Safari、Firefox、Internet Explorerをご利用ください。

12.お問い合わせ窓口

上記内容に関してご質問等がございましたら、下記連絡先にご連絡ください。
株式会社 LIXILイーアールエージャパン 人事総務部門
〒111-0015
東京都台東区東上野6-9-3 住友不動産上野ビル8号館 2F
TEL:03-4335-4015 FAX:03-4335-4020
<受 付> 平日(月~金)/9:00~17:30
※土曜、日曜、祝祭日は休みとさせて頂きます。

お問い合わせ

個人情報保護方針について